Recherche rapide

Trouvez votre produit

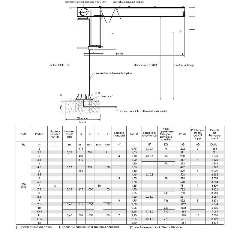
Potence sur colonne à rotation totale 360° PRT avec flèche inversée en IPE 4t P:6m

LEV26661

Fiche technique

Portée (m) 6
Hauteur sous fer HSF (m) 3
CMU (kg) 4000

En savoir plus

Potence sur colonne à rotation totale 360° PRT avec flèche inversée en IPE - Capacité 0,15 t à 10 t Adaptée au service intérieur et extérieur, la potence sur colonne PRT permet une rotation totale sur 360° et peut être assistée par une motorisation (en option). Sa flèche inversée en fer IPE est conçue pour un usage intensif et permet de dégager la hauteur de suspension maximale lorsque la hauteur sous plafond est limitée. La structure de cette potence est adaptée à l'installation optionnelle d'un palan à direction motorisée. La fixation au sol s'opère par chevillage chimique ou par tiges d'ancrages avec massif béton. Une gamme complète d'accessoires est disponible. CMU 0,15 t à 10 t. Portée de 2 m à 8 m (suivant capacité). Hauteur sous fer standard (HSF) 3 m adaptable en + ou en en modifiant la cote HT (pour HSF supérieure à 4 m nous consulter). Flèche théorique sous charge nominale = environ 1/250e de la portée + hauteur sans dépasser 1/100e de la portée seule. Le couple de renversement est donné à titre indicatif et sous charge nominale. Protection : système 3 couches. Finition polyuréthane jaune RAL 1028. Vitesse de levage maximum = 16m/min. Possibilités de motorisation en rotation : MOTORISATION PAR LE BAS : pour potences service intérieur, portée maxi 6 m, pour CMU maxi 2500 Kg environ. Entraînement par friction par lun des deux galets dans le boîtard situé en partie inférieure du bras de réaction. Vitesse circonférentielle en bout de bras = 15 m/min maxi. MOTORISATION PAR LE HAUT : pour potences service extérieur, Pour charges lourdes et de grandes portées. Entraînement positif situé en bas de fût par pignon et couronne. Ce système peut être monté sur tous les types de rotations totales pour obtenir des vitesses plus élevées. AUTRES CAPACITES DISPONIBLES!!!!