Recherche rapide

Trouvez votre produit

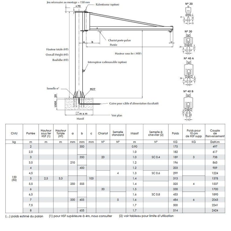
Potence sur colonne à rotation 270° PFTC avec flèche triangulée en profil creux 2t P:2m

LEV26551

Fiche technique

Portée (m) 2
Hauteur sous fer HSF (m) 2
CMU (kg) 2000

En savoir plus

Potence sur colonne à rotation 270° PFTC avec flèche triangulée en profil creux - Capacité 0,05 t à 2 t Exclusivement destinée au service intérieur, la potence sur colonne PFTC permet une rotation légère sur 270°. Sa flèche triangulée est basée sur un profil creux. Les déplacements s'opèrent par poussée sur la charge uniquement. Destinée à être équipée d'un palan manuel ou électrique, ce modèle bénéficie d'une grande souplesse d'utilisation avec son chariot porte palan monté sur galets plastiques. La fixation au sol s'opère par chevillage chimique ou par tiges d'ancrages avec massif béton. Une gamme complète d'accessoires est disponible. CMU 0,05 t à 2 t. Portée de 2 m à 8 m (suivant capacité). Hauteur sous fer standard (HSF) 2,50 m adaptable en + ou en en modifiant la cote HT (pour HSF supérieure à 4 m nous consulter). Chariot porte-palan inclus. Ligne dalimentation incluse. Ce type de potence ne peut être motorisé. Flèche théorique sous charge nominale = environ 1/250e de la portée + hauteur sans dépasser 1/100e de la portée seule. Le couple de renversement est donné à titre indicatif et sous charge nominale. Protection : système 3 couches. Finition polyuréthane jaune RAL 1028. Vitesse de levage maximum = 16 m/min.